C U A T R O P A T I O S




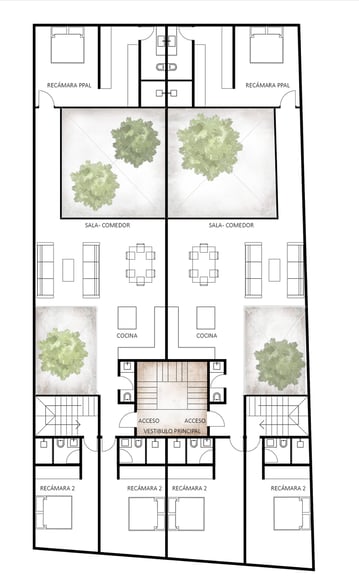
Cuatro Patios es un pequeño conjunto de 4 departamentos ubicado en San Miguel de Allende, todos los departamentos se abren a patios interiores que brindan luz natural y ventilación a todos los espacios, cuenta con un roof top de uso común y dos particulares ideales para disfrutar momentos en familia.














Explora la galería
